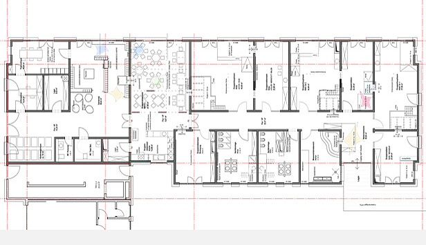
Innenausbaukonzept Kindertagesstätte in Nürnberg
Baujahr 2012 / 2013 Bauherr WIN GmbH Leistung Erstellung Innenausbaukonzept Größe ca. 500 m2 Kosten ca. 70.000 €
Erstellung eines Innenausbaukonzepts einer Kindertagesstätte auf Basis einer vorliegenden Genehmigungsplanung.
Leistungen:
- Abstimmung des Konzepts mit Bauherr, Betreiber, Jugendamt
- Zeichnerische Darstellung des abgestimmten Entwurfs in Grundriss und Schnitt
- Kostenberechnung
-Objektüberwachung
Gebäudeplanung: Loebermann Architekten GmbH








