Neubau Bürger- und Vereinshaus Erlangen-Kriegenbrunn
Bauherr Stadt Erlangen, Hochbauamt Leistung LPH 1-9 Größe ca. 700m2 BGF, ca. 3.200m3 BRI
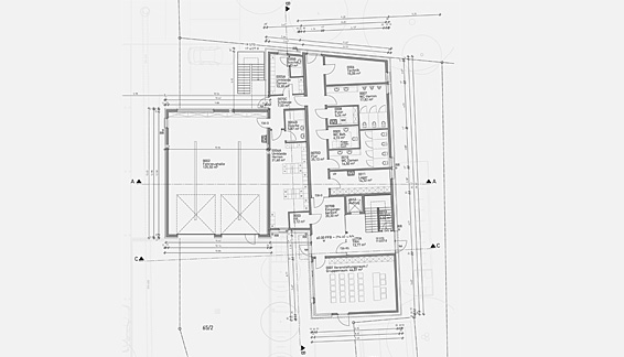
Neubau eines Bürger- und Vereinshauses am Ortsrand von Kriegenbrunn mit Anbindung an das Landschaftsschutzgebiet. Städtebauliche Orientierung an den dominierenden fränkischen Steildachformen und Hoftypologien des Altortes. Der Gebäudekomplex gliedert sich in ein zweigeschossiges Bürgerhaus mit Bürgersaal und Vereinsräumen (steil geneigtes Satteldach) und ein eingeschossiges Feuerwehrhaus (flach geneigtes Satteldach), die durch ein Flachdachgelenk (Dachterrasse) verbunden sind.









